Situada frente al campo de golf de Sotogrande, el trazado de esta casa invita a experimentar la sombra existente entre el plano del suelo y la cubierta que se extiende sobre ella. Un generoso vuelo de la cubierta que no solo ofrece refugio del intenso sol de Cádiz, sino que también protege de las copiosas lluvias que descienden de la Sierra de Grazalema, el lugar con mayor pluviometría de la península ibérica.

En un lugar muy retranqueado de la edificación, un cuerpo de madera se despliega, confiriendo a las habitaciones la privacidad necesaria mientras aporta la calidez deseada en cada rincón. Surgen cuatro límites distintos que definen la espacialidad de la casa: el del plano del suelo, el de la sombra generada por el vuelo arquitectónico, el del vidrio que permite una climatización eficiente del interior, y por último, el acogedor límite de la madera.




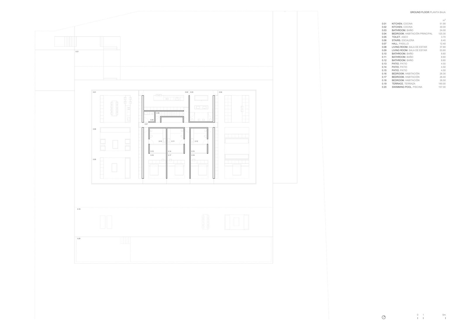
El acceso a la vivienda se produce desde la calle superior, un punto estratégico que ofrece una vista privilegiada de la cubierta de agua y el paisaje. La lámina de agua de la cubierta funciona como aislamiento térmico y acústico. La capa de agua regula la temperatura del edifico, funciona como aislante, absorbe el calor durante el día y lo libera lentamente durante la noche, reduciendo la necesidad de calefacción y aire acondicionado.

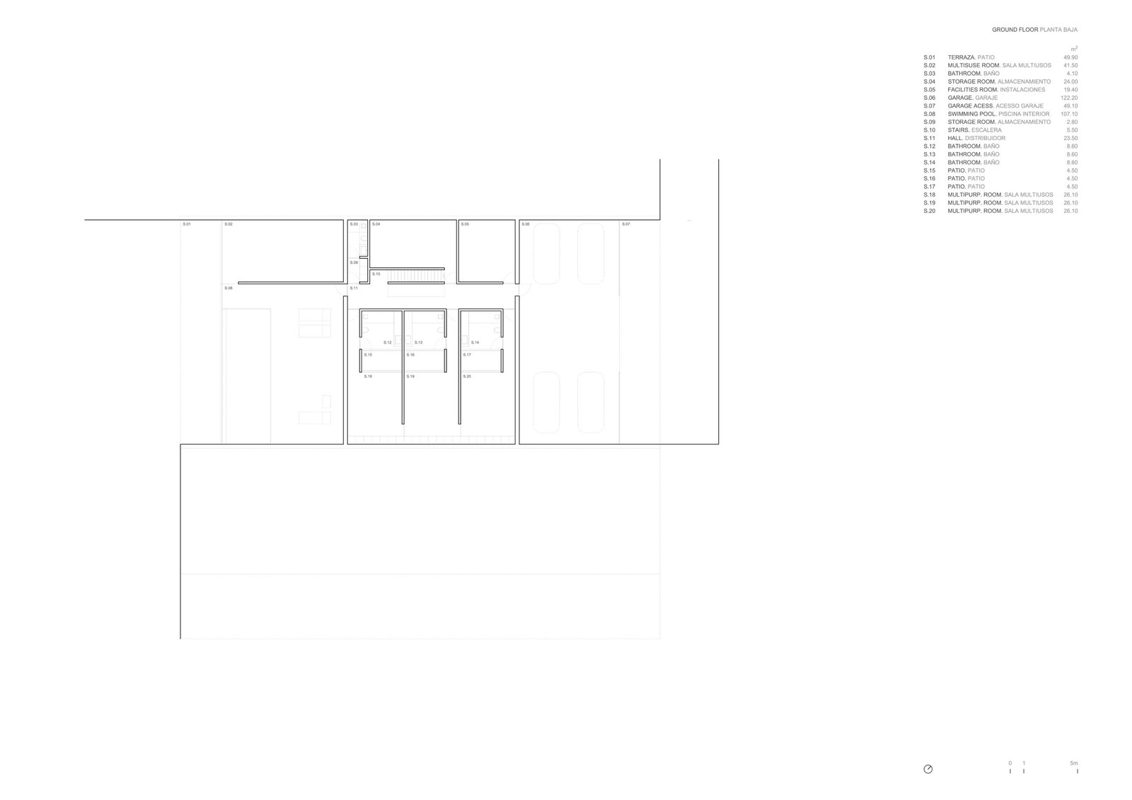
Uno de los requisitos de la vivienda era que los materiales empleados en la casa tuviesen una tonalidad cálida. Interiormente el programa compacto se distribuye mediante un núcleo de comunicación central que aglutina los lucernarios que iluminan los espacios centrales y permiten el acceso a la lámina de agua superior.
Los planos de cubierta y el de cota cero se desplazan de manera cuidadosa para generar un acceso cubierto que invita a entrar, así como una piscina sin fin que se extiende sobre el campo de golf. Se busca realizar el mínimo impacto en el entorno, vivir entre dos planos, promoviendo la experiencia de algo tan sencillo como una sombra habitada en Sotogrande.































































































