La casa está situada en una llanura a pocos kilómetros de la costa atlántica portuguesa. Esta zona tiene la particularidad de tener una población dispersa en terrenos de diferente tamaño. En su génesis tuvo una actividad predominantemente forestal/agrícola.
Quinta das Oliveiras tiene características similares. Consta de una pequeña zona de cultivo, un pinar y un conjunto de edificaciones con mala calidad constructiva: vivienda, dependencias y galpones de apoyo.

Los diferentes instrumentos de gestión territorial vigentes determinaron las reglas básicas del proyecto. Los edificios existentes sólo podían ser demolidos o reemplazados. En caso de reemplazo, la nueva construcción debe mantener la huella de la construcción preexistente. Sería posible, también de acuerdo con la misma legislación, construir una planta sótano y aumentar la superficie en un 20% en una planta superior.




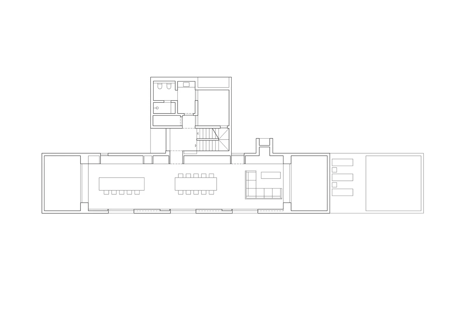
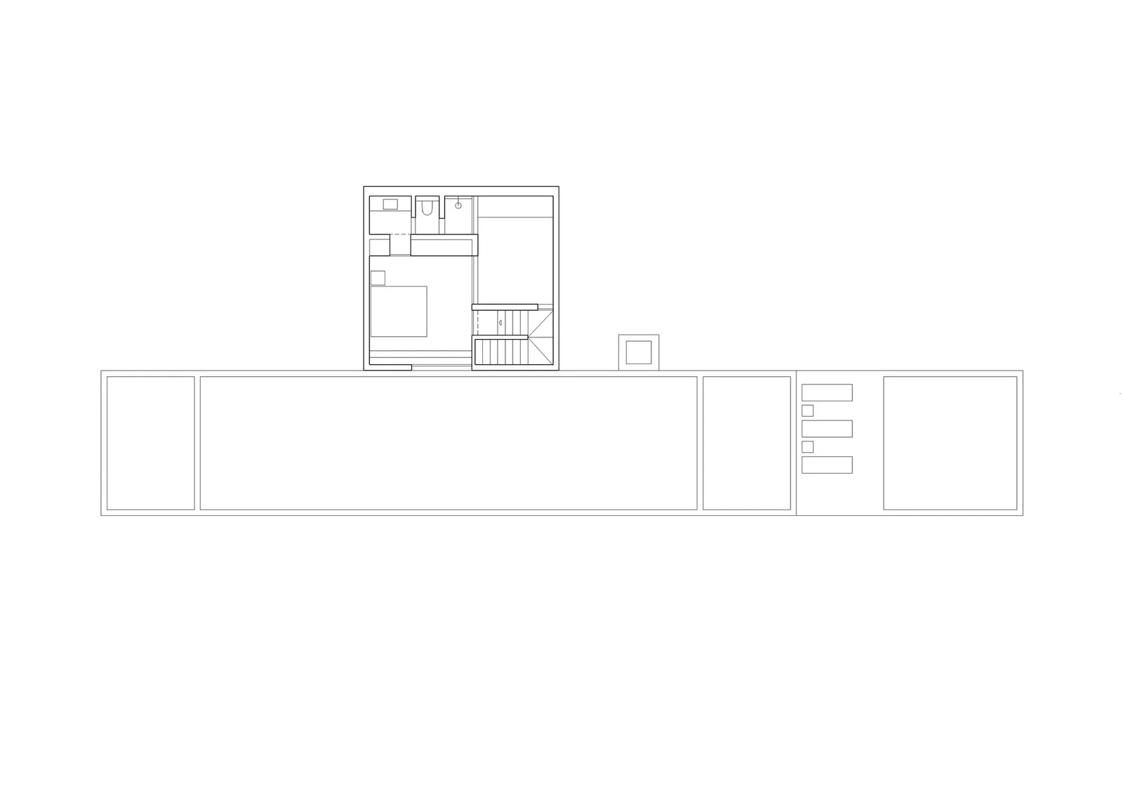
La configuración de la nueva casa es reflejo de lo que determinan los instrumentos de gestión urbanística.
Los espacios interiores se adaptaron al volumen posible y en su diseño se buscó la luz y ventilación natural como factor determinante para crear confort.

La nueva casa establece una relación total con el terreno desde las áreas sociales y está compuesta por dos volúmenes unidos entre sí. En un volumen bajo y largo se ubica la cocina, el comedor y la sala de estar en un espacio abierto. Otro volumen más alto y cúbico contiene las escaleras que dan acceso al dormitorio en la planta superior y una zona de apoyo en el sótano.
La zona del sótano está iluminada y ventilada por tres patios situados al norte, sur y este.













































