La Casa dos Sobreiros II asume la ambición de crear una vivienda que concilie la simplicidad formal, el rigor constructivo y una vida cotidiana atravesada por la luz y por la relación fluida entre el interior y el exterior.
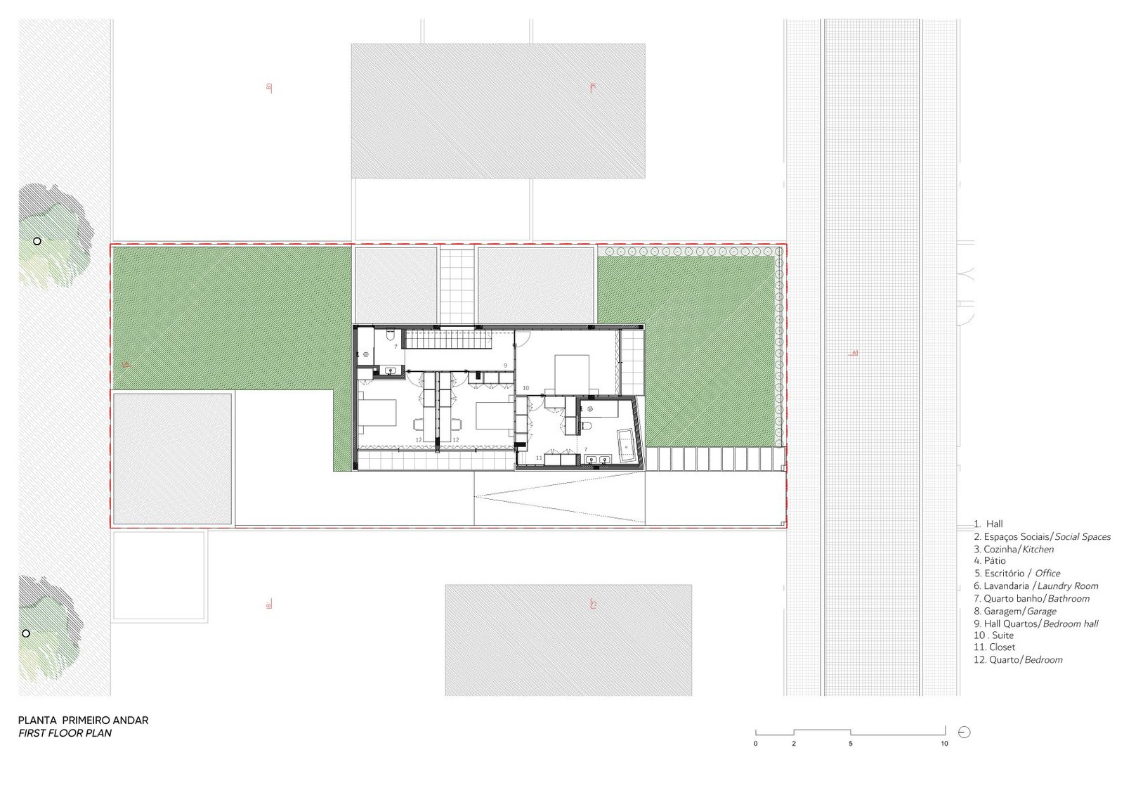
Dos ejes principales organizan el edificio y definen la experiencia espacial. El eje transversal, que acoge la entrada, está marcado por un patio interior que introduce luz natural en el corazón de la casa y cualifica los espacios de circulación. El eje longitudinal, orientado al jardín al sur, establece una relación visual permanente con el exterior y articula el recorrido que conduce a los dormitorios en la planta superior. Estos dos vectores definen el orden del proyecto: un sistema claro de llenos y vacíos, de transparencias y opacidades, que estructura la relación entre la vida social y la vida privada.

En la planta baja se concentran los espacios sociales, totalmente abiertos al jardín, transformándolo en una extensión natural del salón y de la cocina. El espacio diáfano, iluminado por grandes planos acristalados, refuerza la idea de continuidad y favorece la convivencia familiar y la experiencia del habitar. Esta relación se ve aún más acentuada por la suspensión de la volumetría superior, que crea zonas de sombra y abrigo, aportando confort térmico y realzando la vivencia exterior.



En la planta superior, los espacios privados se organizan a lo largo de una galería longitudinal iluminada por un vano vertical que articula ambas plantas, aportando amplitud y luminosidad. Los balcones y retranqueos presentes en los dormitorios garantizan la privacidad sin sacrificar la luz que atraviesa todos los espacios.
La entrada principal se realiza de forma lateral, permitiendo que el recorrido del visitante sea un descubrimiento gradual de la volumetría. Esta solución evita la exposición directa a los espacios sociales, refuerza la privacidad de los habitantes y pone en valor la experiencia arquitectónica.

En la fachada principal, orientada al sur, la gran suspensión marca la identidad de la casa. La ligera inclinación del muro de la suite introduce una tensión sutil en el volumen, captando mejor la luz y aportando dinamismo a la composición. La fachada lateral revela un juego de volúmenes superpuestos, recortados para acoger la entrada, creando una dinámica de llenos y vacíos que refuerza la expresión volumétrica. La fachada norte se presenta como un plano casi ciego, donde la única abertura de acceso contrasta con la luminosidad interior, subrayando la simplicidad formal y el carácter introspectivo de este frente.

La materialidad y los sistemas de almacenamiento integrados se basan en la sobriedad y la precisión: superficies continuas blancas, carpinterías de perfil mínimo, amplios acristalamientos y pavimentos uniformes refuerzan la intención de crear un ambiente depurado y puro. La iluminación —discreta, empotrada y alineada con los ejes geométricos— prolonga por la noche la lectura de la casa como objeto volumétrico, subrayando sombras, profundidades y proporciones.

En síntesis, la Casa dos Sobreiros II es un ejercicio de equilibrio entre forma, función y luz. La claridad volumétrica, la cuidada articulación entre privacidad y apertura, y la relación permanente con el exterior traducen un enfoque arquitectónico que busca intensidad en la simplicidad y confort en la precisión. Más que un objeto construido, la casa propone una experiencia única de habitar, centrada en la serenidad, la luz y la continuidad espacial.






































