No necesitamos jugar a golf para diseñar los edificios que se requieren donde se juega.
Pero es necesario tener un entendimiento de las funciones, hábitos, algunas reglas y también los requisitos y expectativas del cliente y los jugadores.
Debes visitar el sitio. Con esta información se da el primer paso en el proyecto.

Es como saltar al vacío, pero bien preparado y armado con nuestras herramientas profesionales. Papel, lápiz, goma, lápiz de color, imágenes del sitio, un modelo del sitio tal como existe y una generosa dosis de optimismo.
Surgen posibilidades que se prueban inmediatamente. Algunas con perspectivas de continuidad, otras mueren de inmediato. Se evita lo obvio; el enemigo del diseño. Castrante.


Se hacen modelos pequeños y ásperos. El proceso de selección es continuo y a veces es necesario comenzar de nuevo. Se hace una elección. Se necesita un consenso común.
Debe ser desarrollado y probado, con modelos y cualquier otra herramienta que se tenga a mano. La función domina. La
morfología completa.

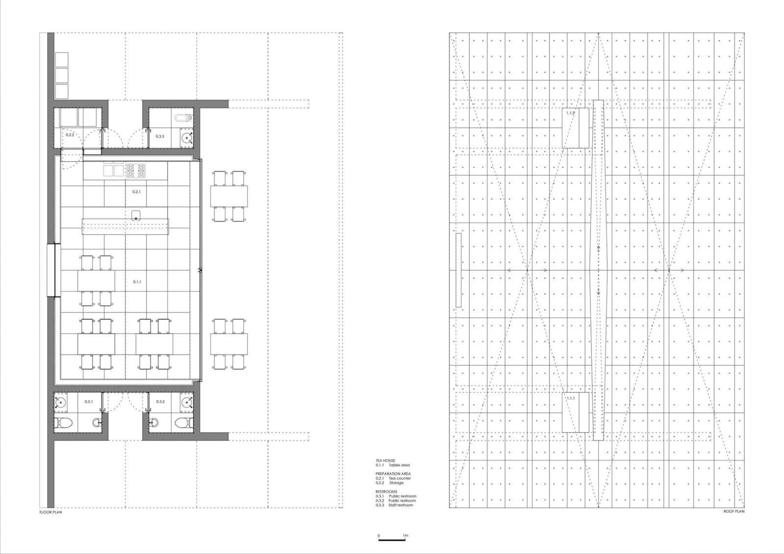
Cuando está completo, incluso parece obvio. El pequeño edificio, la Casa de Té en el Campo de Golf Taifong, es una parada para descansar y tomar un refrigerio. Eso es todo lo que es. Una solución arquitectónica para la función deseada e prevista. – Carlos Castanheira

































