Edificio de Ladrillo Universidad Francisco de Vitoria | Tuñón y Albornoz Arquitectos

Fotógrafo: Luis Asín
País: España
Año: 2024
Materialidad: Ladrillo
Localización: Pozuelo de Alarcón, Madrid
Superficie: 19.000 m2
Estructura: Alfonso Gómez Gaite, Alfonso Redondo Gómez, GOGAITE INGENIEROS
Promotor: Fundación Universidad Francisco de Vitoria
Instalaciones: Carlos Úrculo, ÚRCULO INGENIEROS
Constructora: Ferrovial
Arquitecto Técnico: Sancho Páramo Cerqueira, Cristina Nicolás Soto
Colaboradores: Andrés Regueiro, Julia Díaz, Nicolo Franchetto, Catarina Pereira, Javier Chávez, Inés García de Paredes, José Ramón Rodríguez, José Luis Pedrera
Arquitectos: Emilio Tuñón y Carlos Martínez de Albornoz
Edificio de ladrillo en la UFV | Tuñón y Albornoz Arquitectos (Luis Asín)

El nuevo edificio de aulario y biblioteca (CRAI), dentro del campus de la Universidad Francisco Vitoria (UFV) en Madrid, trata de construir un nuevo espacio para la enseñanza, donde los alumnos y los profesores puedan intercambiar conocimientos, desplegando nuevos territorios de trabajo e investigación.

El nuevo edificio para la enseñanza es un palacio construido por las personas, con las personas y para las personas, que habilita los espacios donde se desarrollará una enseñanza que debe tener como objetivo prioritario, de acuerdo con el propio ideario de la UFV, el bien común global y, simultáneamente, el reconocimiento de la dignidad de todos y cada uno de los alumnos y profesores, verdaderos usuarios del campus.

Edificio de ladrillo en la UFV | Tuñón y Albornoz Arquitectos (Luis Asín)

Así, el nuevo edificio se configura como un contenedor de actividad académica, abierto, flexible y participativo, que trata de intensificar de la vida del campus de la UFV, por medio de una arquitectura de raigambre humanista, respetuosa con el medioambiente, con el paisaje, y con la estructura urbanística del campus.

Fruto de la confrontación entre las necesidades públicas de la UFV y las obsesiones privadas de los diferentes actantes que han participado en el proceso, el edificio se materializa a partir de una oscilación permanente entre conceptos complementarios: abstracción y figuración, gravedad y ligereza, materialidad y geometría, tradición y modernidad.

Urbanísticamente, el nuevo aulario se sitúa en la confluencia de los dos ejes principales del campus: la calle que abastece a los módulos originales de la UFV, y el Camino de la Luz, que conectará el edificio que acoge Le Cordon Bleu, la Capilla, el Centro Polideportivo y el Edificio H.

La construcción prismática horizontal de la nueva construcción se convierte así en el fondo perspectivo de las dos principales vías del campus, definiendo, junto con el Edificio H y el conjunto de Ciencias de la Salud, la futura Plaza de la Mente, en la que convivirán una plataforma activa, de carácter más urbana, con una zona arbolada, que vincula la plaza con el paisaje arbolado próximo.

Edificio de ladrillo en la UFV | Tuñón y Albornoz Arquitectos (Luis Asín)

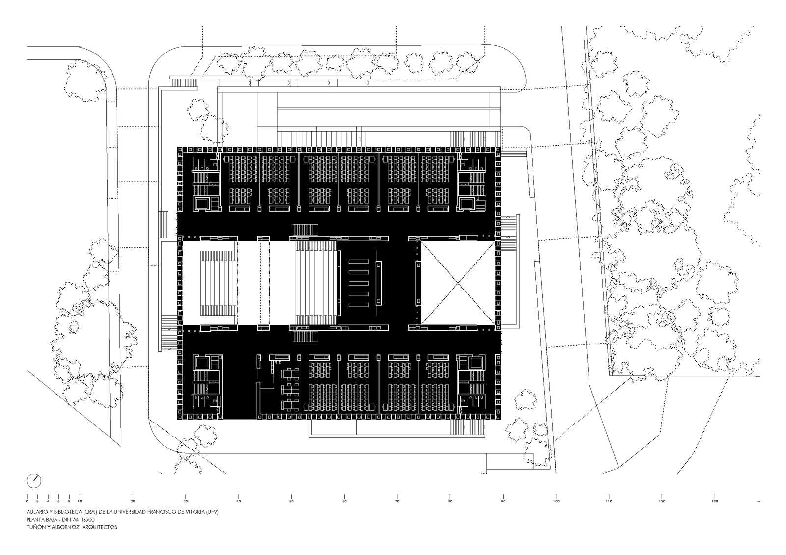
El nuevo edificio de aulas y biblioteca (CRAI) se organiza como una estructura palaciega compacta, con una crujía perimetral de aularios que zunchan, en su interior, tres amplios espacios vacíos que se disponen de forma diagonal en la sección. Los tres vacíos diagonales albergan dos espacios polivalentes y una cantina, que permite ampliar la oferta existente en el campus. El CRAI, de funcionamiento independiente del aulario, se ubica en la planta sótano, abriendo sus ojos, por medio de una doble altura, a la planta baja. El programa se complementa con un aparcamiento subterráneo.

Para la fachada se propone una construcción de ladrillo blanco que trata de unificar las diferentes referencias materiales del campus: la materialidad del ladrillo oscuro de los primeros aularios de la universidad, con las blancas fachadas del Centro Polideportivo y los nuevos aularios de la universidad. Dada las proporciones, y la escala, de la volumetría del nuevo edificio, se construye una fachada gruesa que hace presente la condición constructiva del edificio, por medio de tres bandas construidas por la repetición de gruesos pilares de ladrillo pintados de blanco, con profundos huecos verticales, que oscilan en cada nivel.

Mapa Proyectos Arquitectura en Blanco
Compartir proyecto:
Proyecto publicado: 14 de enero de 2026 - Última modificación : 14 de enero de 2026
Proyecto añadido por: César Jiménez González