La casa, destinada a una pareja con dos hijos y distribuida en tres pisos, está emplazada en un terreno rectangular con buena exposición solar y vistas privilegiadas al Castillo de Santa Maria da Feira.
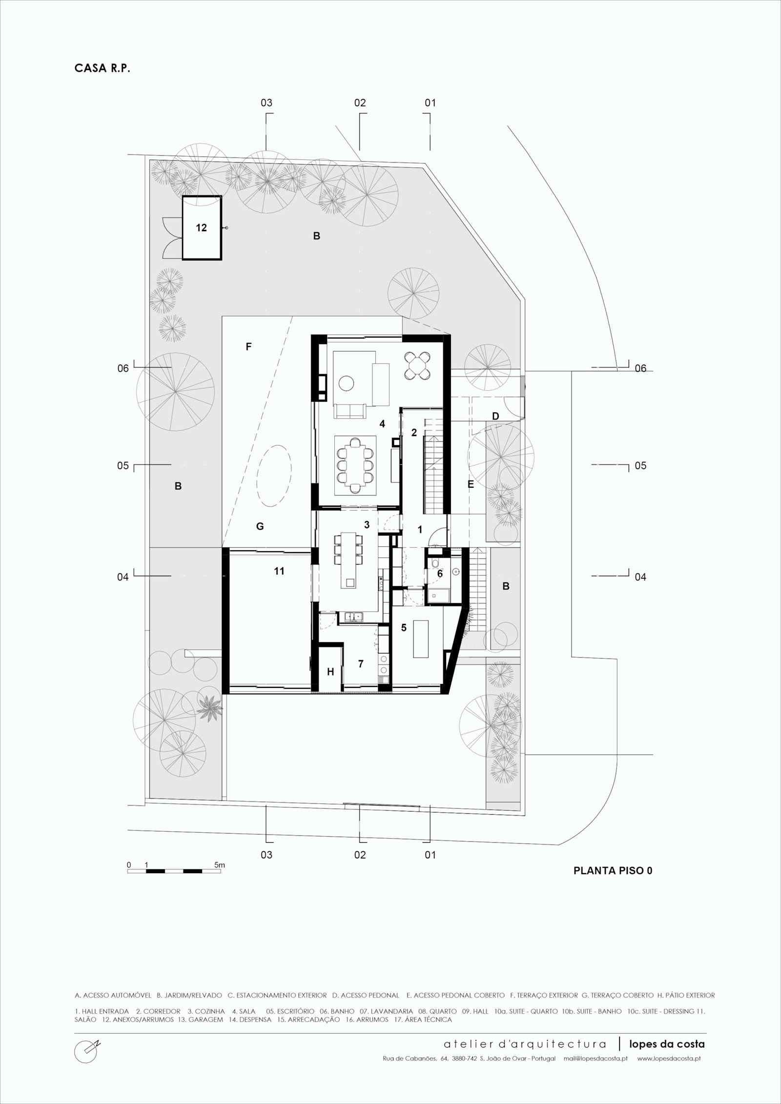
El acceso peatonal y vehicular se realiza a través de las dos calles adyacentes al terreno, con cotas diferentes, aprovechando su pendiente natural. Así, el acceso principal se hace desde la cota superior, que mediante una cubierta conduce a la entrada de la vivienda, ubicada en la fachada noreste.

Esta fachada, al estar orientada hacia la calle, se presenta deliberadamente más cerrada. El acceso al garaje, en el sótano, se asegura a través de una ligera rampa desde la calle al sureste. Aquí también se encuentran las áreas de almacenamiento, las áreas técnicas y un espacio destinado a guardar artículos de caza y pesca, pasatiempos del propietario.




En el nivel de la planta baja, se ubican las zonas sociales y de ocio de la vivienda, aprovechando al máximo la relación con el exterior y el cuadrante solar: al este/sur, disfrutando de las vistas al castillo, y al sur/oeste, abriéndose al jardín y a un patio protegido por una cubierta, con una zona exterior para estar y comer.
En el primer piso se encuentra la zona íntima, compuesta por dos habitaciones con baño compartido para los hijos de la pareja, la suite principal orientada al este y sur, y un despacho/sala de estudio orientado al sur y oeste.
La casa se caracteriza por el uso de hormigón visto en el sótano, formando la base, y por el enlucido blanco contrastado con revestimientos de madera.

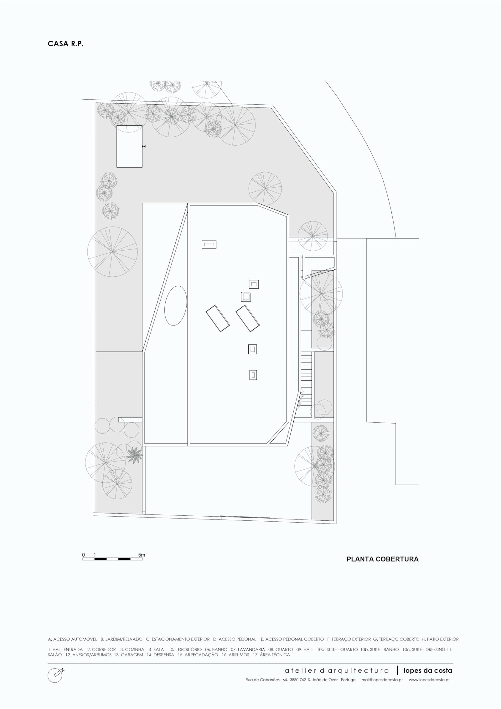
Las cubiertas acentúan la horizontalidad y aportan dinamismo al conjunto, rompiendo la rectangularidad de la construcción, impuesta por la geometría del terreno.
De esta manera, se buscó crear un conjunto homogéneo, con una volumetría y uniformidad formal, en el que los materiales contribuyen a la diferenciación de los pisos, haciendo el volumen más dinámico y menos compacto.





























































































