El terreno de intervención tiene una superficie de 931,00 m² y se encuentra en una esquina, con una fachada en curva y un ángulo cerrado. La topografía, aproximadamente 1,0 m por encima de los niveles de referencia de la calle, acompaña las pendientes de las vías que delimitan el terreno, en dirección al cruce.
Se trata de una zona urbana en proceso de definición, donde predomina lo rural con presencias urbanas dispersas. El paisaje no suscita preocupaciones específicas. Es ecléctico, fragmentado y disperso.
La parcela forma parte de un loteo. La solicitud es para un proyecto de vivienda unifamiliar, con tres dormitorios y estacionamiento cubierto. La principal preocupación es la exposición a la vista pública, teniendo en cuenta la relación entre la longitud de la fachada y la geometría y superficie del lote.

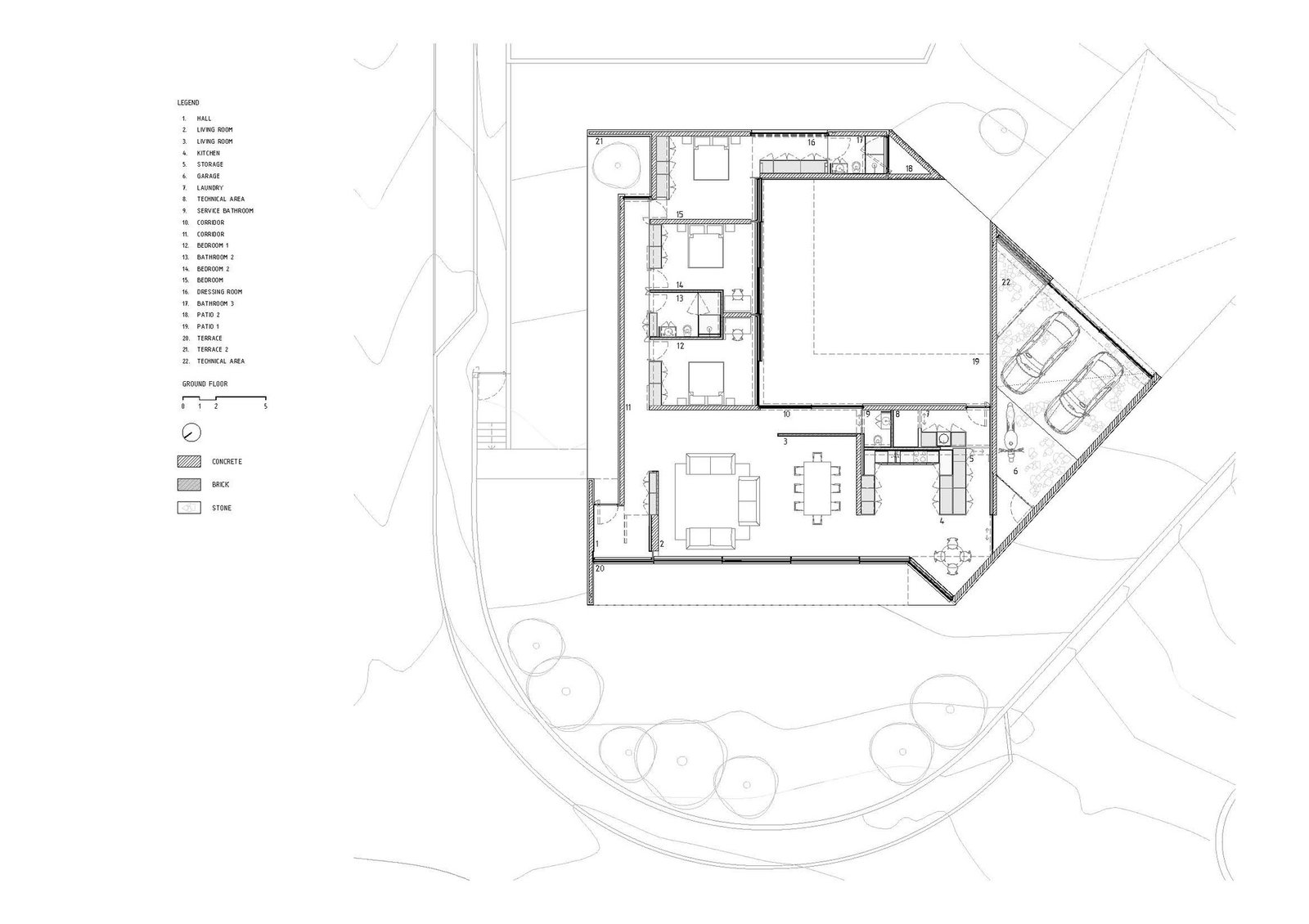
La vivienda ocupa una superficie de 357,70 m² y se desarrolla en una sola planta.
La implantación es un polígono irregular definido por caras paralelas a los alineamientos de las vías públicas. En el centro del polígono se recorta un patio de forma cuadrangular.
El programa del edificio se divide en tres zonas:
- Zona social expuesta a la esquina, al sur-oeste;
- Zona de dormitorios, que delimita el norte y se abre al patio, hacia el este;
- Estacionamiento cubierto, protege la fachada sur y se abre al oeste.

Los espacios principales de estar y servicio de la casa se organizan en torno al patio central, que sirve de apoyo a la actividad doméstica, protegido de las inclemencias por una galería exterior cubierta. La zona social está compuesta por la sala de estar y el comedor, en continuidad con la cocina y un espacio para desayunos. Los armarios de la cocina, con una altura de 2,1 m, filtran parcialmente el espacio común y el acceso a la despensa y lavandería.
El ala privada de la casa está compuesta por dos dormitorios que comparten un baño y un dormitorio con vestidor y baño privado. El estacionamiento es un espacio cubierto que se conecta con la cocina a través de un vestíbulo.



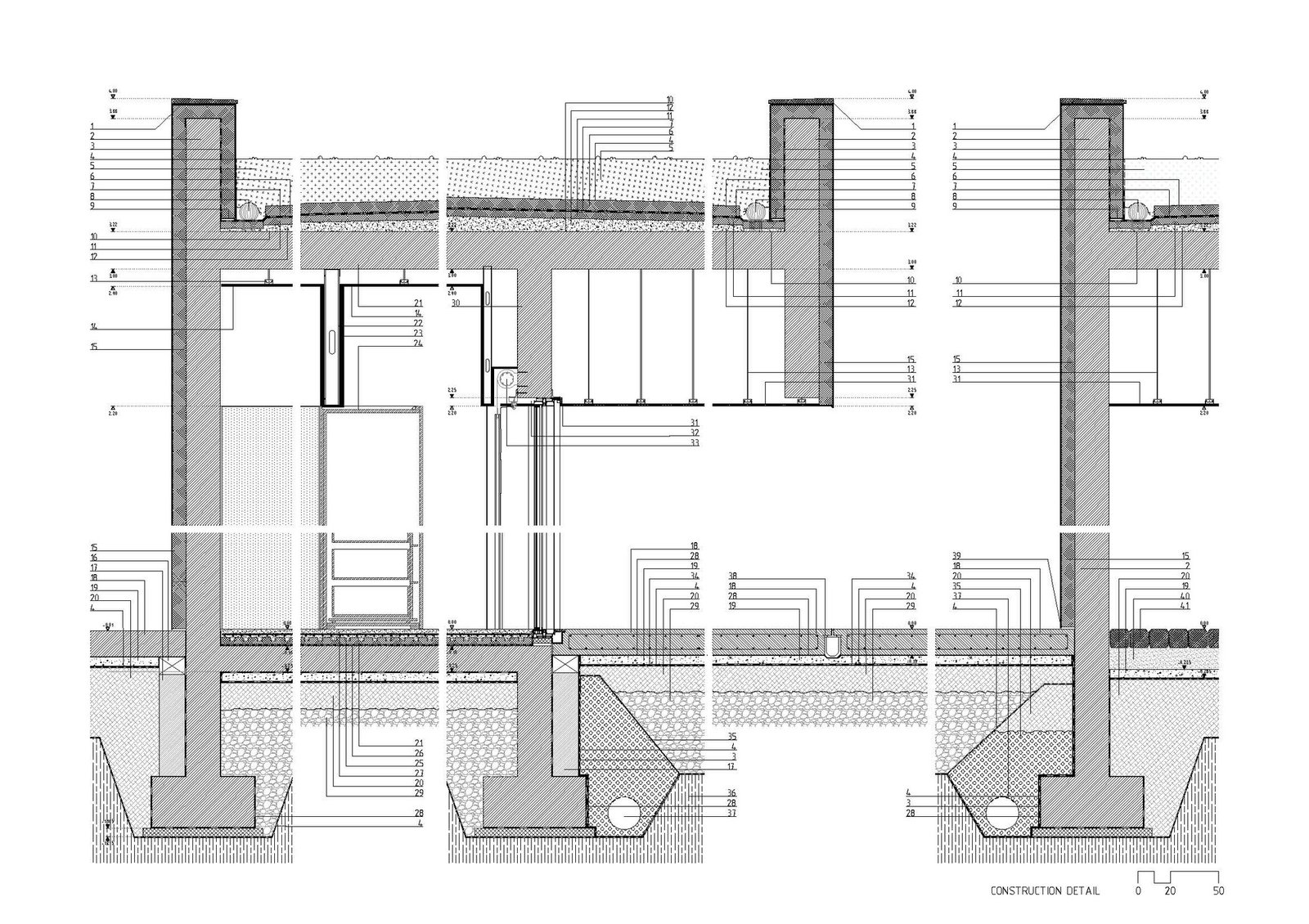
La estrategia compositiva se fundamenta en la sostenibilidad como principio ético. En primer lugar, la sostenibilidad económica y del ciclo de vida de la construcción.
Es una respuesta al paso del tiempo cronológico que desgasta la arquitectura; al tiempo meteorológico; al tiempo de la eficacia, la eficiencia energética, la certificación, la seguridad, la ecología y la inclusión. Por eso busca una arquitectura pasiva y esencial, sin concesiones formales ni artificios constructivos. Las paredes y losas estructurales exponen su naturaleza: el hormigón. Las demás paredes, por razones económicas, son de fábrica revestida de yeso.

Las fachadas están revestidas con sistema ETICS (aislamiento térmico exterior). Los techos son de placas de yeso laminado, ocultando las instalaciones de la vivienda por razones de economía y accesibilidad. La calefacción es integral y está integrada en el pavimento.
Los pavimentos exteriores están compuestos por adoquines de granito, el material que emerge del terreno.
Los muros de la casa están cubiertos por elementos naturales que los revisten y anulan su presencia visual. La vegetación forma parte de la estrategia de integración paisajística, recurriendo a especies autóctonas del territorio en el que se inserta.































































































