Construida en una ladera en un tranquilo suburbio de Bruselas, esta casa sustituye una estructura existente por un nuevo volumen compacto.

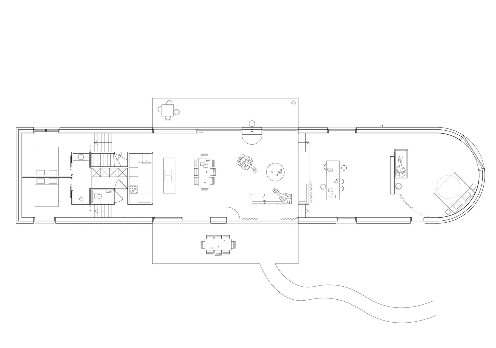
Definida por su sencillez y presencia serena, la casa ofrece un amplio espacio habitable con una forma directa. En lugar de adaptarse al terreno, el nuevo volumen se integra con confianza en el solar. Su arquitectura se rige por la claridad, la economía y la sobriedad.




La estructura está construida con bloques térmicos, sin aislamiento adicional.
El exterior está acabado con un revoco de cemento ligeramente alisado: sin adornos, pero con un toque deliberado. El material se expresa con honestidad, convirtiéndose en la propia arquitectura.

En el interior, los espacios son abiertos y fluidos, confortables sin ser ostentosos. La casa responde a su entorno con discreción, abrazando la pendiente, el clima y su contexto con calma y coherencia.































