La casa IMLA está ubicada en el barrio de Vilarinha en Oporto, barrio que fue construido en la última fase de los barrios de Casas Económicas del Estado Novo en 1958. El barrio está formado principalmente por pequeñas casas adosadas, siendo la casa IMLA la última casa de la calle, situada en esquina entre dos calles y, por tanto, con un jardín más amplio.

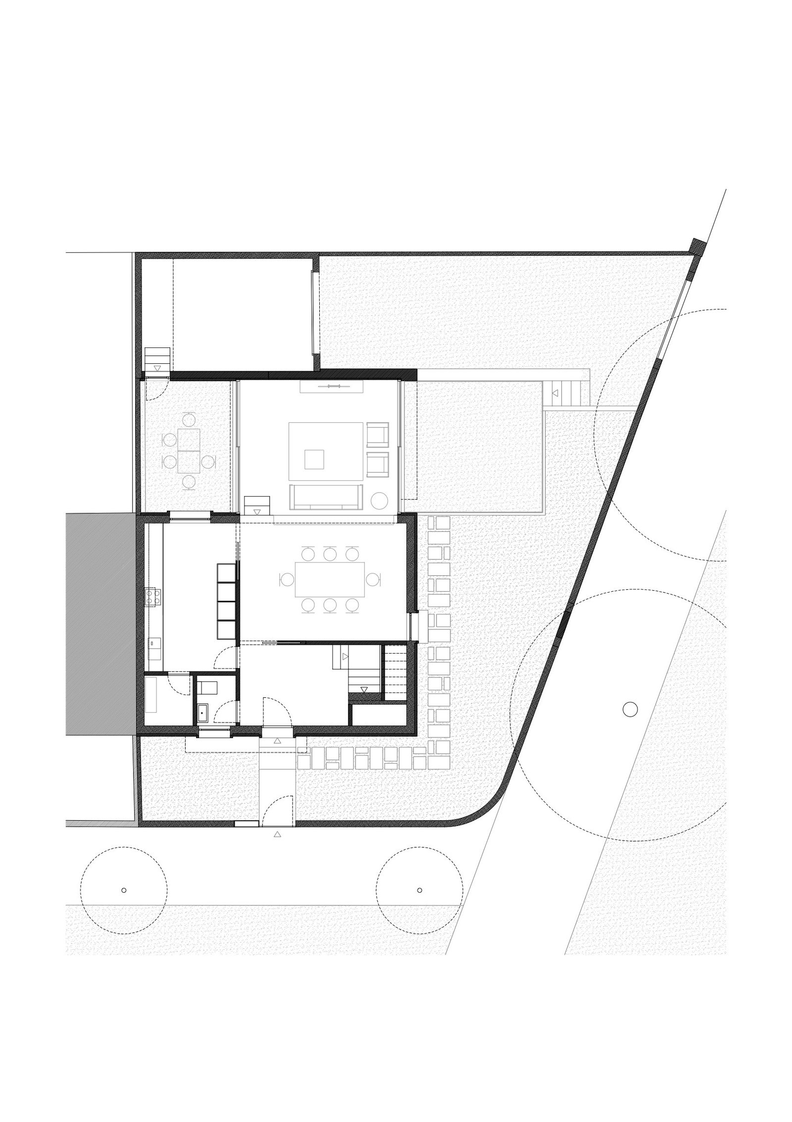
El primer paso de este proyecto fue cambiar la entrada de la casa a otra calle, de modo que el acceso ya no fuera por el jardín y, en consecuencia, quedara en una zona más recogida, dándole mayor utilidad y privacidad.




Para solucionar la necesidad de mayor superficie útil de la casa, se creó una ampliación volumétrica de dos plantas hacia el oeste, que se aleja del muro hacia el sur para crear un patio interior y permitir una mayor entrada de luz desde el sur y el oeste, salvando así el déficit de luz que existía en la planta baja de la casa.

En cuanto a sus características formales, la premisa del proyecto fue no permitir que la ampliación desvirtuara el volumen original de la casa y fuera vista como un elemento nuevo.
Tanto en la transición entre los dos volúmenes, como en la apertura de nuevos espacios en el nuevo, se puede tener una perfecta lectura del cuerpo de la antigua casa. Los interiores fueron diseñados para permitir que todos los espacios tuvieran iluminación natural.

































































































