El proyecto consistió en la rehabilitación de una vivienda unifamiliar, parte del tejido urbano de la Via Savonarola
Construida originalmente a principios del siglo XX para albergar a las familias de los ferroviarios, la edificación cuenta con un grado de protección, según lo especificado en las directrices urbanísticas municipales. Cualquier transformación de la propiedad requiere preservar su forma original y sus características distintivas.
Con esta limitación, el proyecto combinó la restauración conservadora de la envolvente histórica del edificio con un rediseño radical de su distribución y sistema estructural. Dentro de los dos muros cortina, la nueva ampliación crea un contraste deliberado con la estructura existente, resaltando sus aspectos materiales y constructivos.
La nueva estructura consta de una estructura metálica ligera combinada con una escalera de hormigón colado in situ. Para minimizar la altura entre plantas, las plantas se construyen con chapa ondulada, optimizando el espesor sin comprometer la resistencia.
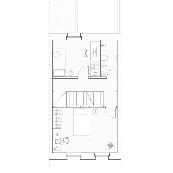
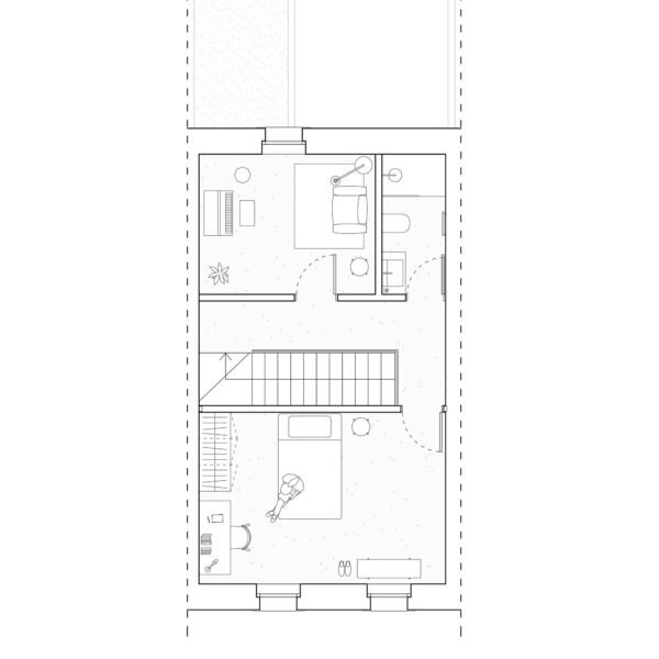
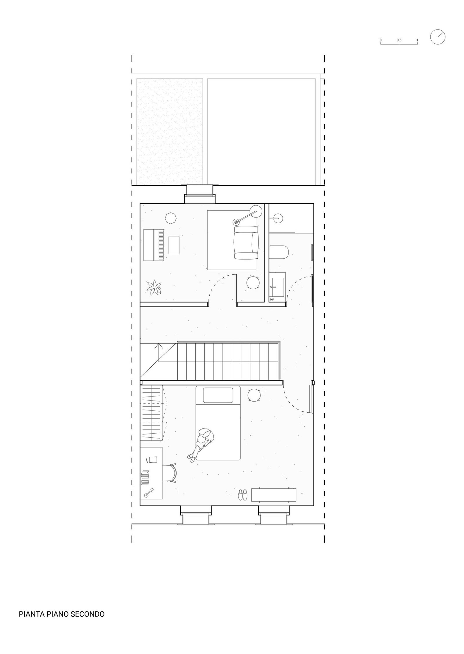
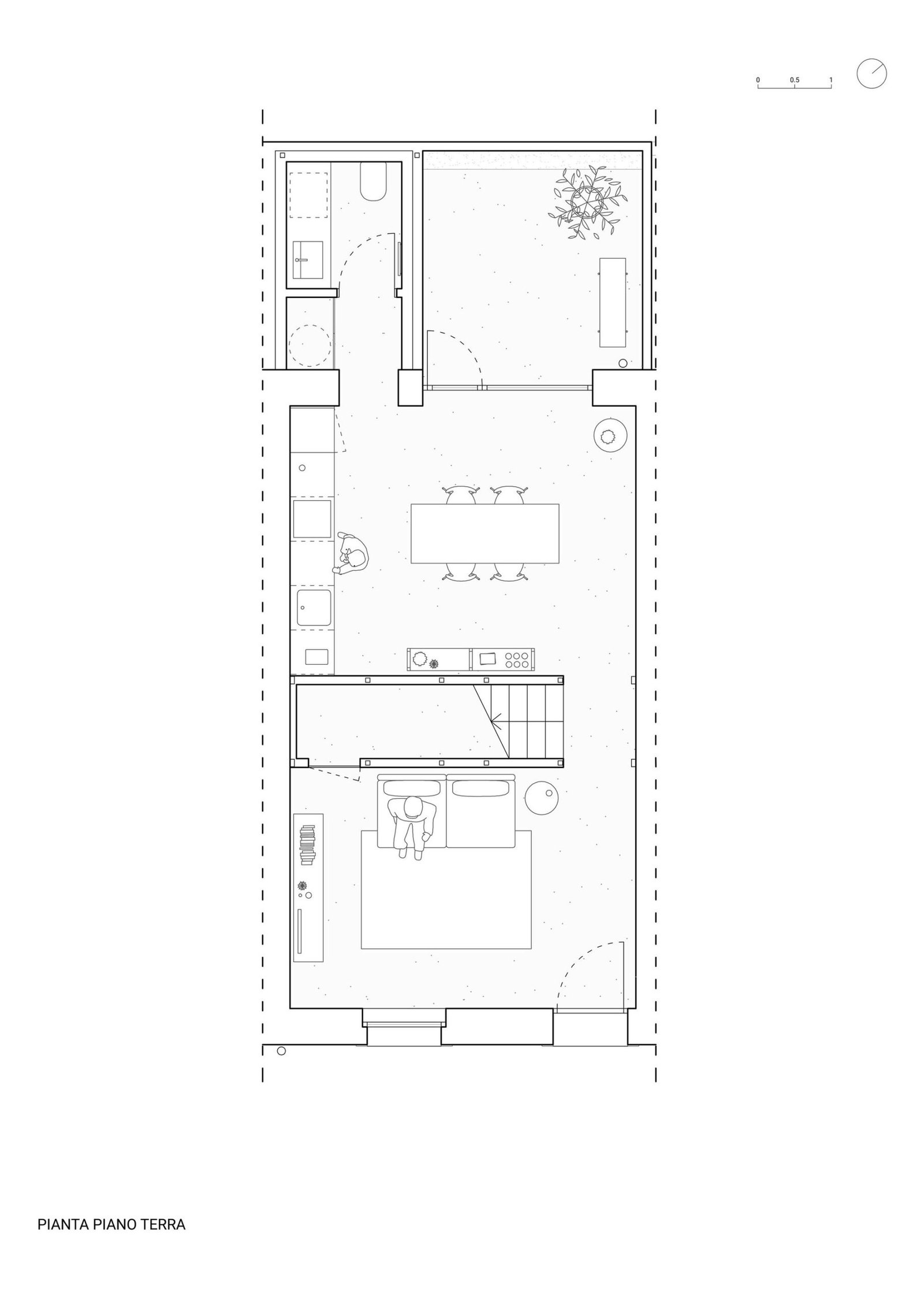
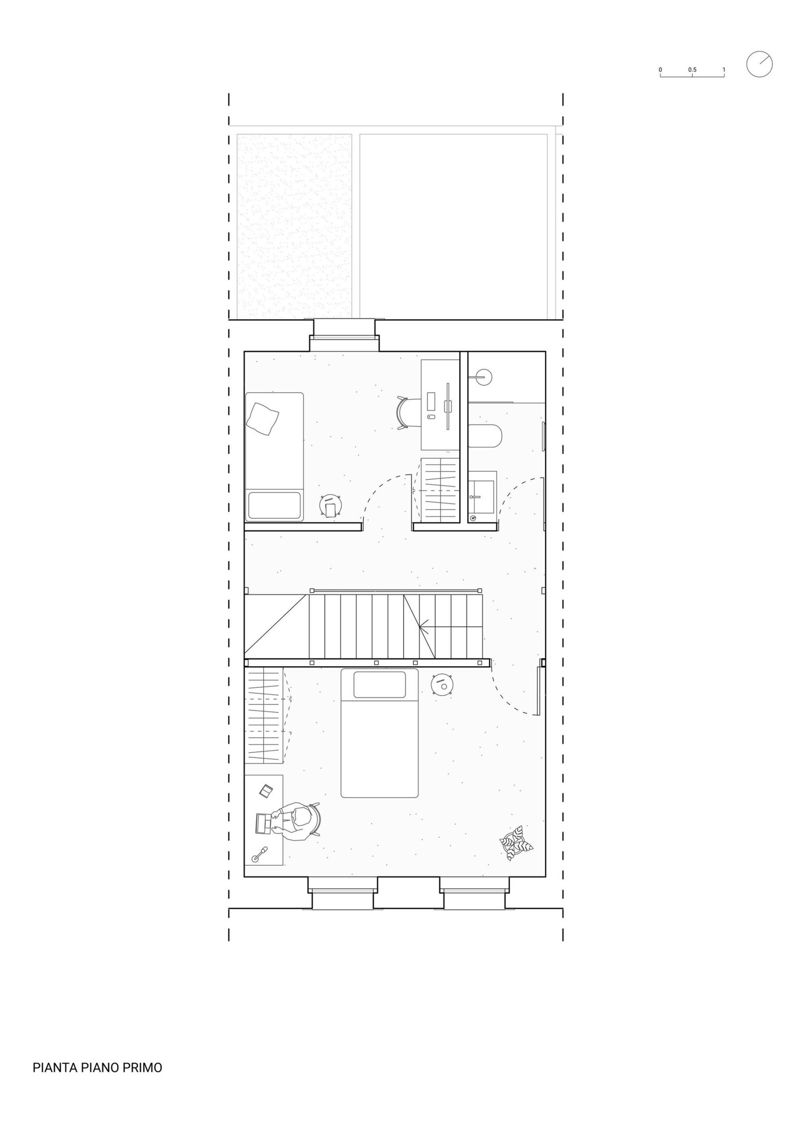
En las zonas comunes, las texturas vistas de los muros de piedra originales realzan el carácter histórico del edificio. La planta baja se utiliza como espacio común, con sala de estar, cocina y un pequeño patio exterior. Las dos plantas superiores se dedican a zonas privadas, incluyendo dormitorios y baños.
Responsable: Arquitectura en Blanco – César Jiménez González. Finalidad: gestionar el envío de nuestra newsletter. Legitimación: tu consentimiento. Destinatarios: Brevo (plataforma de email marketing, acogida a las garantías adecuadas). Derechos: puedes acceder, rectificar y suprimir tus datos, así como otros derechos en este enlace. Más información en nuestra Política de Privacidad.




































