El proyecto de la Casa Oskar, diseñado por el arquitecto checo Jan Žaloudek para su propia familia, constituye un exponente conmovedor de la arquitectura contemplativa que integra paisaje, luz y tiempo.
Situada en el pequeño pueblo de Kamenná Lhota, en Bohemia del Sur, la casa se edifica sobre una parcela que originalmente formaba parte del jardín de un château vecino, y donde aún perviven restos de un antiguo granero barroco, árboles centenarios y un muro de piedra que limita la extensión del terreno.
La vivienda responde a una filosofía de diseño centrada en la contemplación, la inspiración y el recreo. Tal como destacan los autores, se trata de “un microcosmos armonioso para dormir, leer, cenar y crear”, en continuidad con el universo exterior.
Para Žaloudek y su esposa, la historiadora del arte y escritora Jolanta Trojak, este proyecto materializa el sueño de un lugar donde conectar con el paisaje o retirarse hacia el interior para recuperar energías físicas y mentales.

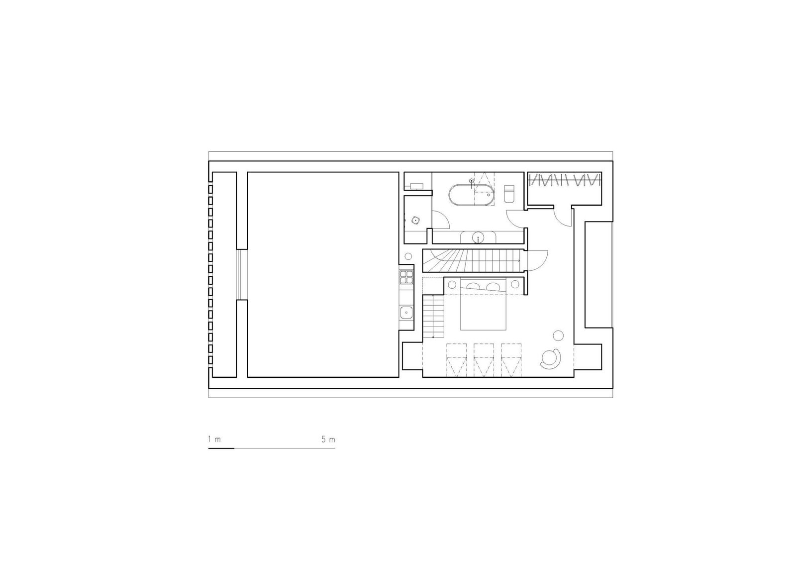
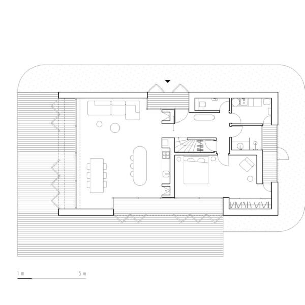
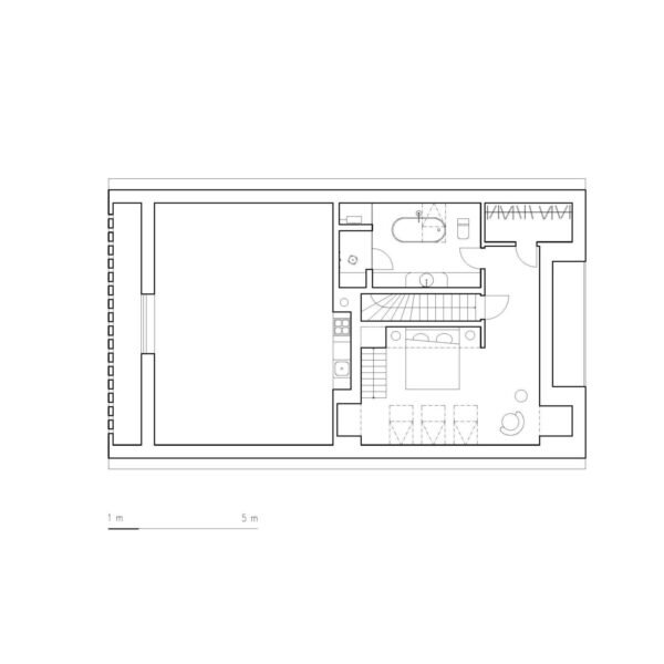
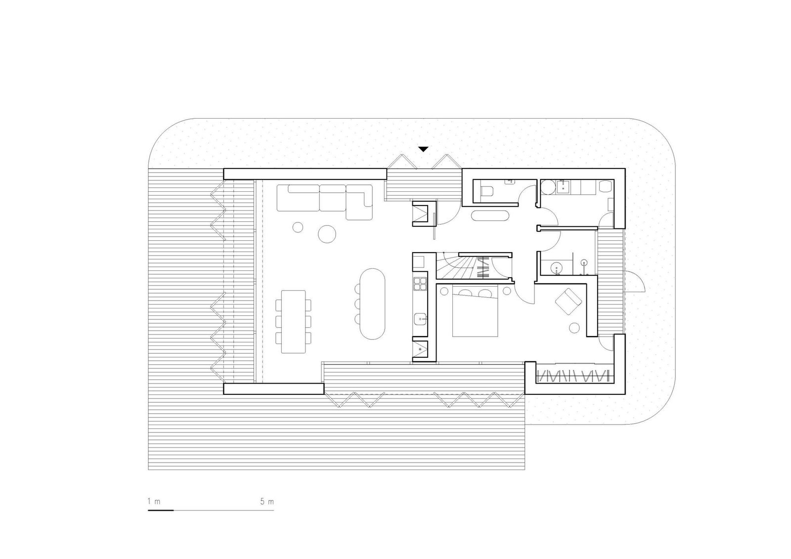
El diseño de la casa respeta con elegancia su entorno histórico y tipológico. Se adopta la forma alargada tradicional de las construcciones agrícolas locales, con tejado a dos aguas, que se adapta sutilmente a la topografía y las normativas del lugar. A su vez, el arquitecto introduce elementos de perforación en la mampostería del hastial sur —una abertura circular de dos metros de diámetro junto a un tamiz de ladrillo— que filtran la luz y evocan simultáneamente tradición y modernidad.




La relación de la Casa Oskar con la luz natural y los ciclos diarios es otro de sus rasgos fundamentales. Desde el dormitorio y el salón principal, con vistas al huerto, es posible contemplar el amanecer y la salida de la luna. Los paneles de sombreado permiten variar la exposición al sol a lo largo del día, transformando los espacios de totalmente abiertos a íntimos y apacibles. En la noche, los nichos iluminados y los grandes ventanales hacen que la casa se convierta ella misma en parte del paisaje iluminado.
El interior abre un contrapunto con la sobriedad exterior blanca: el ambiente resulta cálido, orgánico y evocador. Un gran espacio central con techo abovedado de siete metros de altura actúa casi como una capilla doméstica, mientras que los muebles de madera maciza, la piedra negra del banco de entrada y los detalles diseñados a medida por el propio arquitecto contribuyen a una unidad estética muy cuidada.
Además, la vivienda alberga una profunda presencia de arte —máscaras y esculturas africanas, lámparas de diseño, una colección de arte moderna checa— que refuerzan la idea de la casa como un lugar de pensamiento y sensibilidad.

La Casa Oskar recibe también un carácter comunitario: bautizada en honor al compositor cosmopolita Oskar Nedbal —que compuso su opereta Sangre Polaca en el château vecino—, se concibe no sólo como vivienda privada sino como un “Gesamtkunstwerk vivo” abierto a estancias, talleres, residencias artísticas y eventos temporales.
En este sentido, la obra trasciende el ámbito doméstico para convertirse en plataforma de creatividad y hospitalidad.

En resumen, la Casa Oskar es mucho más que una residencia: es un testimonio de cómo la arquitectura puede construir un diálogo entre luz, paisaje, historia y vida cotidiana. Para tu web, presenta este proyecto como un ejemplo de cómo la arquitectura de autor (en este caso de Jan Žaloudek) apuesta por un refugio que a la vez está abierto a las relaciones, al arte y a la comunidad creativa. Si lo deseas, puedo ayudarte también a elaborar una versión más extensa con planos, mobiliario, materiales y referencias técnicas para tu público especializado.

















































