En el barrio barcelonés de Verneda i La Pau, Urbanitree desarrolla un conjunto de 40 viviendas sociales que replantea la manera de habitar en comunidad dentro del tejido urbano consolidado. Un proyecto que combina sostenibilidad, innovación constructiva y sensibilidad hacia el entorno.
El edificio se levanta sobre una parcela que articula el encuentro entre distintas escalas del barrio, buscando integrarse con naturalidad en el contexto. Su volumetría, de líneas sencillas y proporciones equilibradas, genera una presencia discreta pero contemporánea, potenciando la continuidad visual con los bloques residenciales existentes y los espacios públicos circundantes.
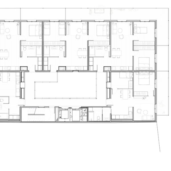
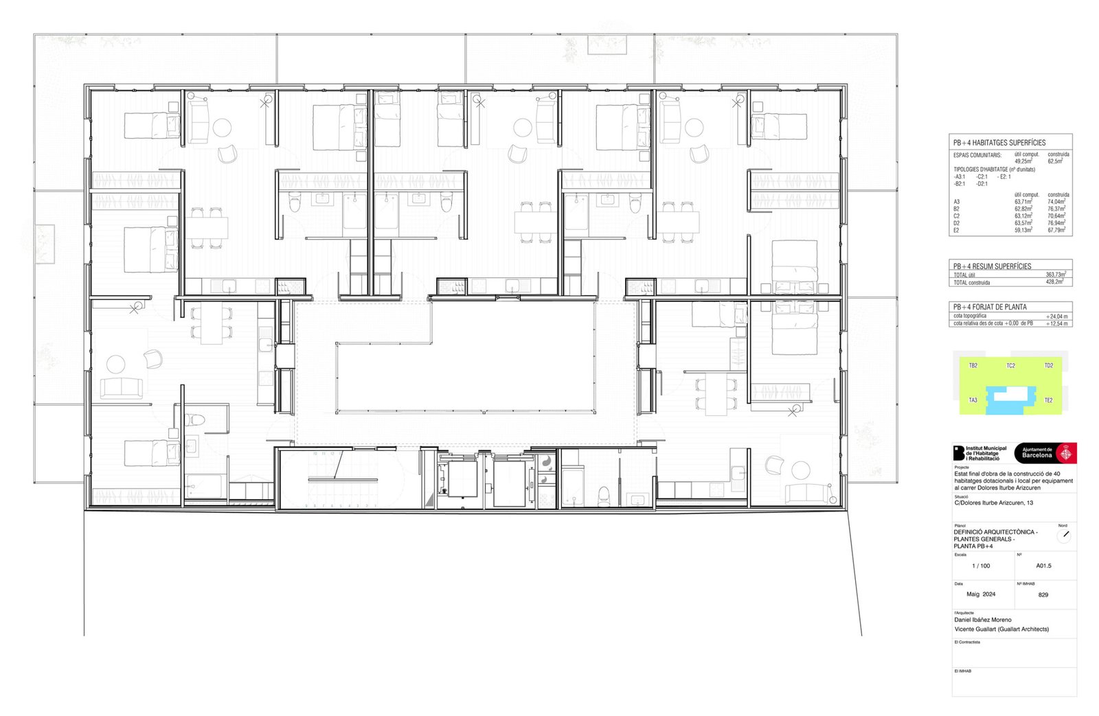
La organización interior responde a criterios de eficiencia y flexibilidad. Las viviendas, mayoritariamente de dos y tres dormitorios, se abren hacia amplias terrazas y patios que actúan como prolongación del espacio doméstico, mejorando la ventilación cruzada y el confort térmico. Esta relación entre interior y exterior refuerza la idea de vivienda como lugar de bienestar y convivencia.
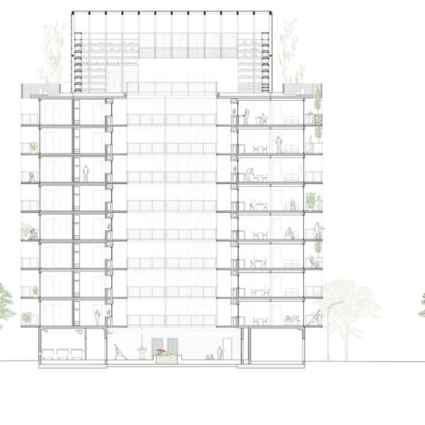
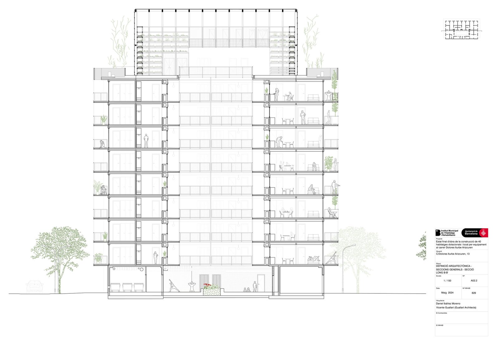
Desde un punto de vista constructivo, el proyecto apuesta por sistemas industrializados y materiales sostenibles que reducen los tiempos de ejecución y la huella ambiental. La estructura en madera laminada y la fachada ventilada con paneles de fibras naturales son reflejo del compromiso de Urbanitree con una arquitectura responsable y de bajo impacto.
El conjunto incorpora además soluciones pasivas —orientación, control solar, aislamiento— que optimizan el comportamiento energético sin recurrir a tecnologías complejas. La vegetación en cubiertas y patios interiores contribuye a mejorar el microclima y a generar espacios comunes más amables.
En su conjunto, las 40 viviendas sociales de Verneda i La Pau representan una manera actual de entender la vivienda pública: eficiente, digna y sostenible, concebida para favorecer la vida en comunidad y el arraigo en el barrio. Una propuesta que demuestra que la arquitectura puede ser una herramienta de transformación urbana y social.
Responsable: Arquitectura en Blanco – César Jiménez González. Finalidad: gestionar el envío de nuestra newsletter. Legitimación: tu consentimiento. Destinatarios: Brevo (plataforma de email marketing, acogida a las garantías adecuadas). Derechos: puedes acceder, rectificar y suprimir tus datos, así como otros derechos en este enlace. Más información en nuestra Política de Privacidad.























