Nos encargaron transformar una ruina en una casa confortable. Además, debíamos aprovechar los suelos, carpinterías, mármoles y alacenas procedentes del derribo de una casa al lado del mar. La parcela tiene agua de un pozo.
Habitar el desierto de Almería nunca ha sido fácil, pero tampoco desagradable.
Se ha proyectado una solución modular de geometría sencilla que actúa como soporte y contrapunto de las formas orgánicas de la vegetación y los objetos de uso cotidiano.
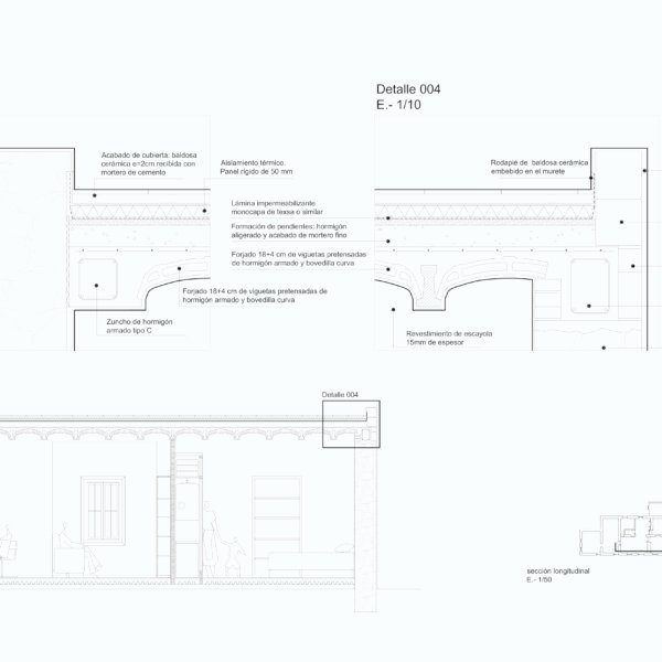
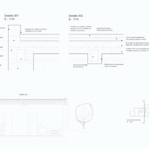
Reconstruimos el cuerpo principal con las piedras existentes en las ruinas, mantenemos así los muros de mampostería gruesos cuya alta inercia térmica funciona muy bien en este clima extremo del desierto. En el resto de la obra, se optó por soluciones constructivas que pudieran ser ejecutadas por los pequeños contratistas locales.
Añadimos un porche amplio, cuyos módulos pueden cubrirse con enredaderas, cañizo o panel sándwich para amortiguar el viento y las altas temperaturas, así como para generar ámbitos con distintos tipos luz, aire y calidez.
Responsable: Arquitectura en Blanco – César Jiménez González. Finalidad: gestionar el envío de nuestra newsletter. Legitimación: tu consentimiento. Destinatarios: Brevo (plataforma de email marketing, acogida a las garantías adecuadas). Derechos: puedes acceder, rectificar y suprimir tus datos, así como otros derechos en este enlace. Más información en nuestra Política de Privacidad.







































