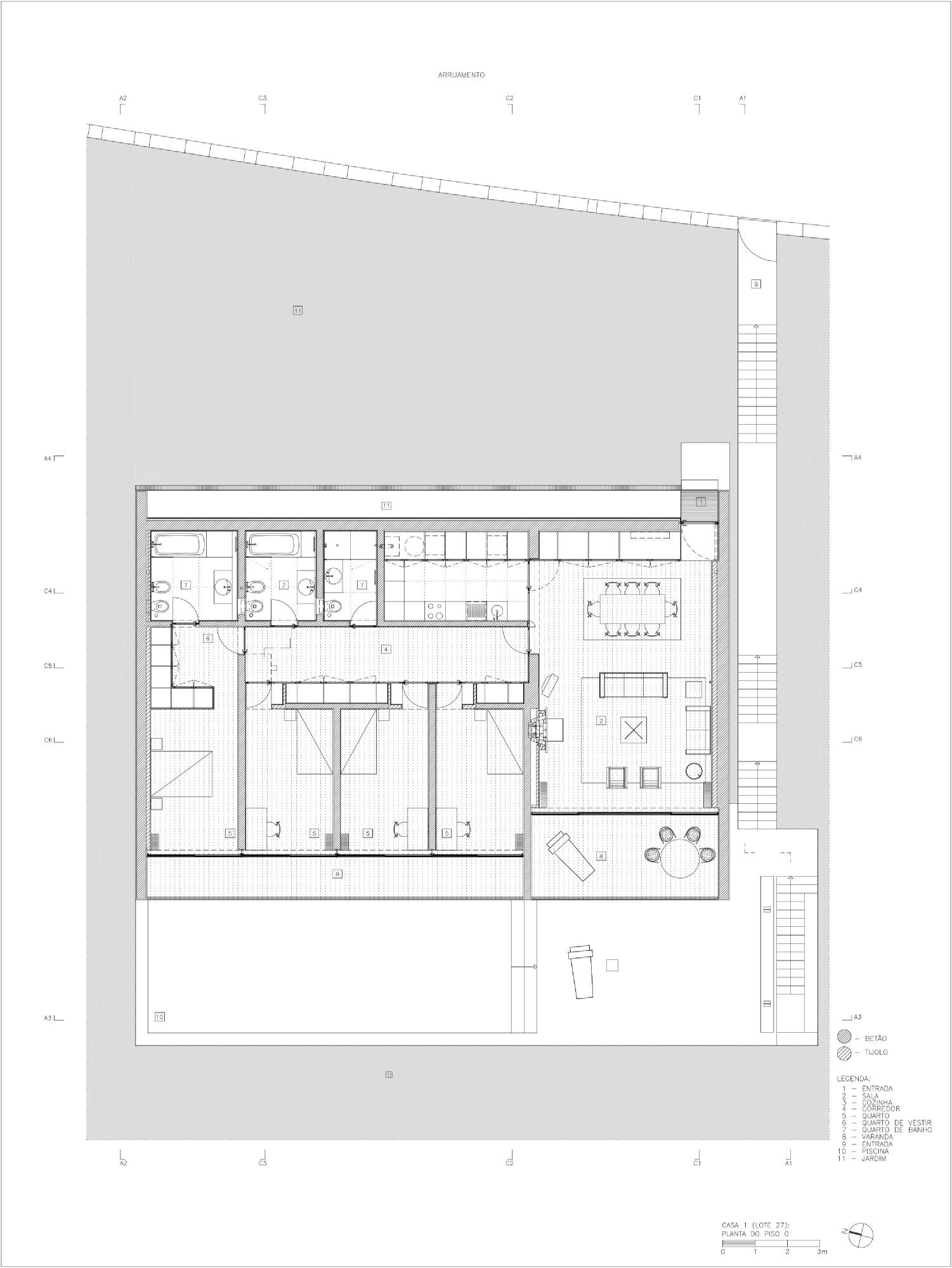
Un terreno muy inclinado.
Dos casas con el mismo programa. Y dos temas a experimentar:
– Arroparse en el paisaje, procurar unas sensaciones desde el interior de cobijo, de cercanía y rasante.
– Alzarse sobre la pendiente, procurar que la vista se eleve, lejana, en profundidad hacia la sierra.



Dos casas, un único programa, dos propósitos, que no tienen sentido separados.

Como solía decir Fernando Tavora en sus clases:
«… en arquitectura, lo contrario también es verdad».





















































