La casa unifamiliar se encuentra en la parroquia de la costa de São Félix da Marinha. El terreno está muy cerca de Praia da Granja, un conocido balneario situado en el extremo sur del distrito de Oporto y el municipio de Vila Nova de Gaia.
El terreno que encontramos estaba siendo utilizado como campo de cultivo, y en el terreno hacia el sur había algunos pinos y alcornoques, estos árboles estaban en el jardín de la casa. El territorio agrícola y rural está disminuyendo en la parroquia y las construcciones de viviendas colectivas y unifamiliares están aumentando debido a la proximidad al mar y las rápidas conexiones con la ciudad de Oporto.

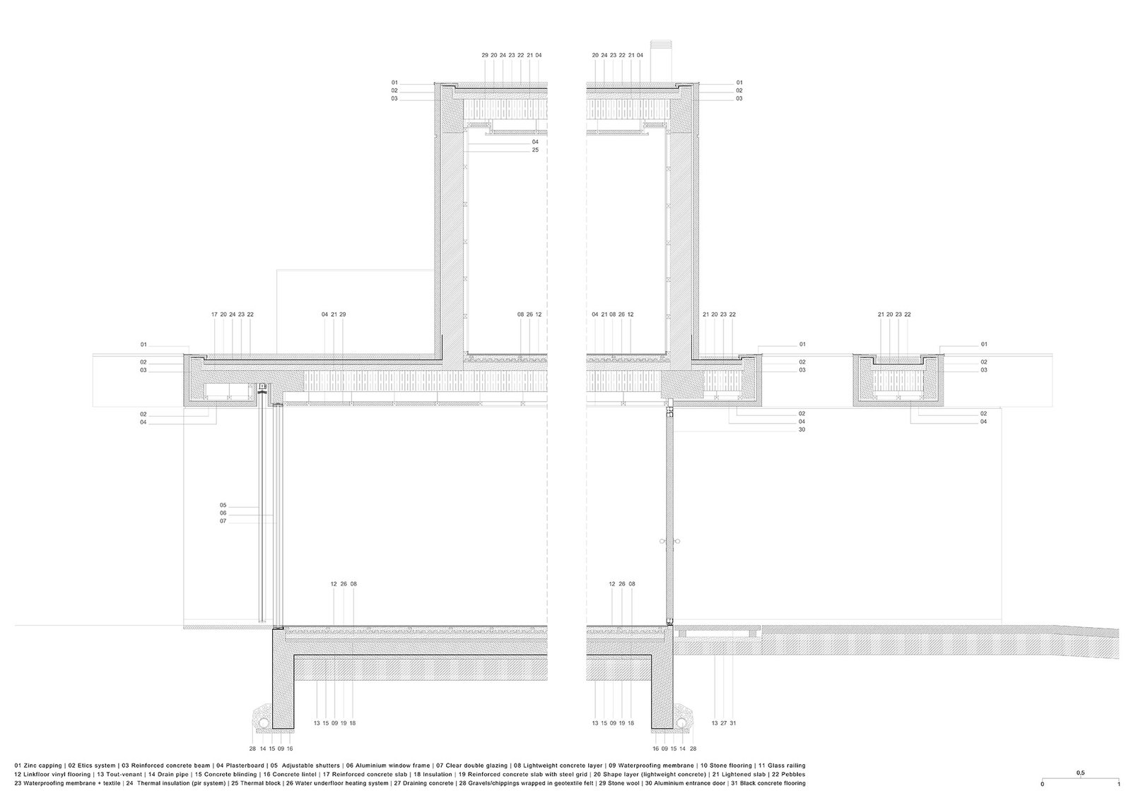
El acceso al terreno se realiza por la calle en el Norte, lo que permitió abrir los espacios interiores de la casa al Sur y al Oeste con vistas al terreno y al mar en la segunda planta. De esta forma, podemos disfrutar de la mejor orientación solar, y proteger el jardín con la piscina de los fríos vientos que soplan del noroeste, muy típicos de la costa norte de Portugal.




En la planta baja la entrada principal conduce a un atrio, abierto al patio del acebo. El vestíbulo permite la conexión a todos los espacios interiores. En el lado este junto a la calle tenemos el garaje con lavadero, y en el lado oeste la cocina junto a la habitación principal. El salón y comedor está orientado hacia el jardín y la piscina, y la separación con el atrio principal se realiza con lama de mdf lacado en blanco.

En el cuerpo que se extiende en planta por el lado este tenemos la zona de dormitorios, con tres dormitorios con acceso al jardín, siendo el dormitorio principal una suite con vestidor. Los tres baños de la vivienda cuentan con iluminación y ventilación natural, ya sea con patios o claraboyas.
En el último piso solo tenemos una sala de usos múltiples para juegos o ver la televisión. Este espacio está conectado a la terraza, que se encuentra en la azotea de la planta baja, con vistas al Océano Atlántico.















































































